Rumah Tinggal Singaraja

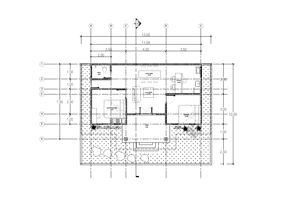
Proyek Rumah Tinggal di Singaraja ini dirancang sebagai hunian satu lantai yang fungsional dan nyaman untuk keluarga. Tata ruang disusun efisien dengan mengintegrasikan ruang tamu, ruang makan, dan dapur secara terbuka, sehingga menciptakan sirkulasi yang lancar dan kesan ruang yang lega. Area privat seperti kamar tidur utama dan kamar tidur ditempatkan terpisah untuk menjaga privasi penghuni. Desain bangunan mengusung pendekatan modern tropis yang dipadukan dengan arsitektur bali dengan pencahayaan dan ventilasi alami yang optimal, didukung oleh perencanaan struktur dan utilitas yang detail untuk memastikan kualitas konstruksi serta kenyamanan jangka panjang.

Kelebihan & keistimewaan design rumah ini

Berikut keunggulan desain rumah dengan perpaduan arsitektur Bali dan modern tropis pada proyek ini:

  1. Identitas lokal yang kuat namun tetap modern
    Elemen arsitektur Bali seperti bentuk atap, murda, proporsi bangunan, serta penggunaan material alami dipadukan dengan garis desain modern yang sederhana. Hasilnya adalah rumah yang berkarakter, tidak ketinggalan zaman, dan tetap relevan secara estetika.

  2. Responsif terhadap iklim tropis
    Desain atap miring dengan overstek, ketinggian plafon yang baik, serta bukaan yang optimal membantu mengurangi panas, memperlancar sirkulasi udara, dan meningkatkan kenyamanan termal alami.

  3. Tata ruang fungsional dan efisien
    Konsep modern tropis diterapkan melalui layout ruang yang terbuka dan mengalir antara ruang tamu, ruang makan, dan dapur, sehingga aktivitas keluarga terasa lebih fleksibel dan ruang terasa lebih luas.

  4. Pencahayaan alami maksimal
    Penempatan jendela dan bukaan dirancang untuk memaksimalkan cahaya alami sepanjang hari, mengurangi kebutuhan pencahayaan buatan dan menciptakan suasana ruang yang hangat dan sehat.

  5. Keseimbangan antara estetika dan fungsi
    Ornamen Bali digunakan secara selektif sebagai aksen, bukan dominasi, sehingga bangunan tetap ringan secara visual dan mudah dalam perawatan jangka panjang.

  6. Material alami yang tahan iklim
    Penggunaan batu alam, kayu, dan finishing eksterior yang sesuai iklim pesisir/tropis meningkatkan durabilitas bangunan sekaligus memperkuat kesan natural dan elegan.

  7. Nilai budaya dan investasi
    Perpaduan arsitektur Bali dan modern tropis memiliki daya tarik tinggi baik sebagai hunian maupun aset, karena mencerminkan kearifan lokal sekaligus gaya hidup modern yang diminati pasar.

  8. Kenyamanan jangka panjang
    Desain ini tidak hanya estetis, tetapi juga memperhatikan kenyamanan harian penghuni melalui sirkulasi udara, pencahayaan, dan proporsi ruang yang seimbang.

project gallery

Lokasi

Desa Bulian, Kubutambahan, Singaraja

Jenis proyek

Rumah tinggal

Model Design

Bali Modern Tropis

Luas Bangunan

72 M2

Jadwal Selesai

Juni 2026

Call GNP Karya

+62 361 9098 123

Send Message

admin@gnpkarya.co.id

Contact us

Get in touch with us