Rumah Bali Modern Minimalis

Rumah Bali Modern Minimalis ini menggabungkan estetika arsitektur modern dengan sentuhan kearifan lokal Bali. Tampilan fasad yang bersih dan sederhana dipadukan dengan material alami seperti batu alam dan finishing warna netral, menciptakan kesan elegan, hangat, dan timeless. Tata ruang dirancang fungsional dengan pencahayaan dan sirkulasi udara alami yang optimal, menghadirkan hunian yang nyaman, tenang, dan selaras dengan iklim tropis Bali.

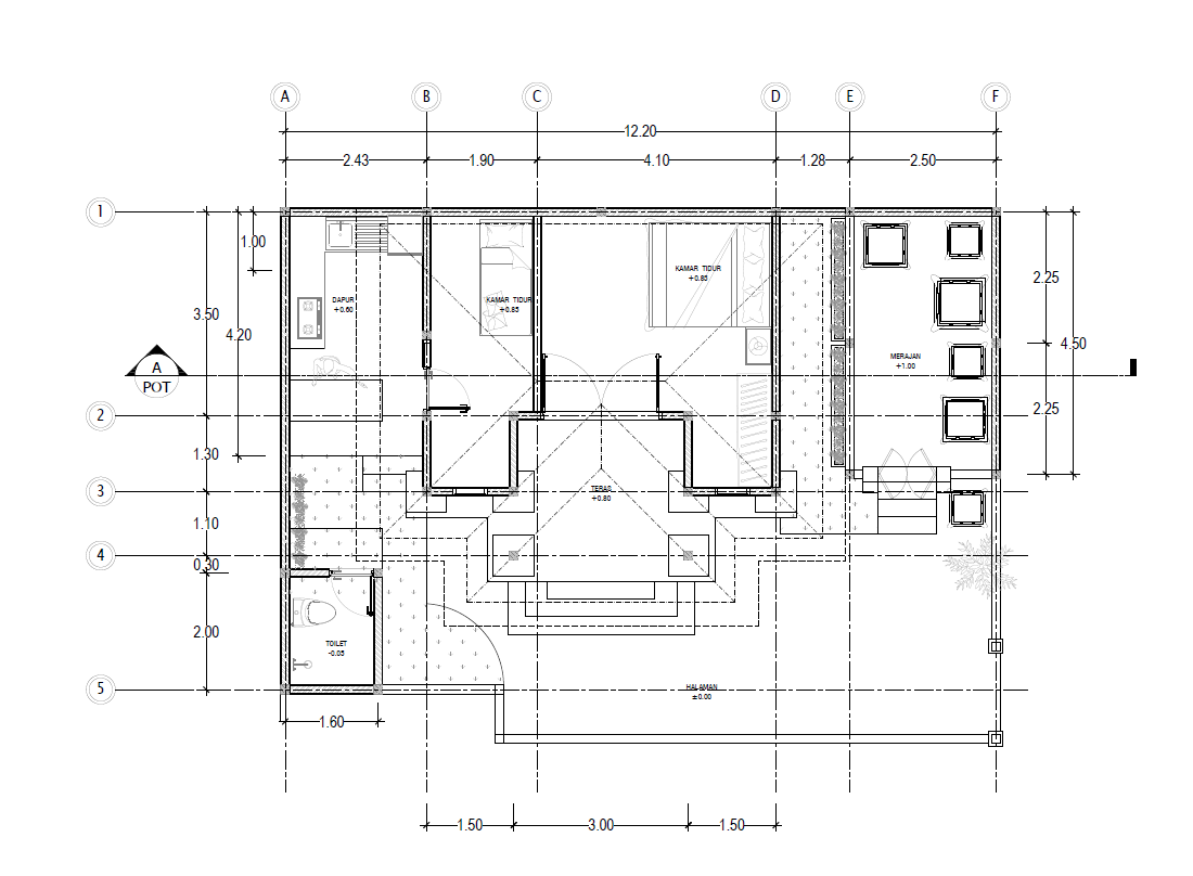
Kelebihan & keistimewaan design rumah ini

1. Perpaduan Modern & Kearifan Lokal Bali
Desain mengusung gaya modern minimalis yang bersih dan sederhana, namun tetap mempertahankan elemen khas Bali seperti penggunaan batu alam, tata letak merajan, dan komposisi ruang yang selaras dengan nilai tradisional.

2. Tata Ruang Fungsional & Efisien
Pembagian ruang dirancang proporsional dan mudah diakses, memaksimalkan fungsi setiap area tanpa ruang terbuang, sehingga rumah terasa lega meskipun di lahan terbatas.

3. Adaptif terhadap Iklim Tropis Bali
Bukaan jendela dan ventilasi alami dirancang optimal untuk sirkulasi udara dan pencahayaan alami, membantu menjaga kenyamanan termal sekaligus mengurangi ketergantungan pada AC di siang hari.

4. Tampilan Fasad Elegan & Timeless
Garis tegas, komposisi massa yang seimbang, serta warna-warna netral menciptakan tampilan rumah yang modern, rapi, dan tidak mudah ketinggalan zaman—nilai tambah untuk jangka panjang.

5. Material Berkualitas & Mudah Perawatan
Penggunaan material seperti batu alam, finishing cat eksterior tahan cuaca, serta detail struktur yang jelas menjadikan rumah lebih awet dan minim perawatan.

6. Tata Letak Merajan yang Tepat
Keberadaan merajan dirancang khusus dengan elevasi dan posisi yang sesuai, menunjukkan perhatian terhadap aspek spiritual dan budaya, yang menjadi nilai penting bagi hunian di Bali.

7. Cocok untuk Hunian maupun Investasi
Desain ini ideal sebagai rumah tinggal keluarga maupun properti investasi karena tampilannya menarik, fungsional, dan mudah diterima oleh pasar domestik Bali.

project gallery

Lokasi

Monang Maning Kodya Denpasar

Jenis proyek

Rumah tinggal

Model Design

Bali Modern minimalis

Luas Bangunan

50 M2

Jadwal Selesai

16 Nopember 2026

Call GNP Karya

+62 361 9098 123

Send Message

admin@gnpkarya.co.id

Contact us

Get in touch with us